РЕАЛИЗОВАННЫЙ ПРОЕКТ ИГРОВОЙ ЗОНЫ ДЛЯ СЕМЕЙНОГО РЕСТОРАНА

ТРЦ МЕГА "Беля дача"
ресторан "ХОРОШИЙ"
г. Москва
700 кв.м


РЕСТОПАРК:
НОВЫЙ ФОРМАТ
ИГРОВОЙ ЗОНЫ ДЛЯ СЕМЕЙНОГО РЕСТОРАНА
Представьте себе оригинальный интерьер, просторный зал с панорамными окнами, комнаты для компаний и торжеств, огромную игровую зону с аттракционами на любой вкус,
где каждый ребенок под присмотром профессионального аниматора будет увлечен играми, пока взрослые
отдыхают в ресторане.
В данном формате удобно скомбинированы семейное кафе
и детское игровое пространство. Помимо разнообразного меню и качественного отдыха для родителей,
заведение сможет предложить интересную
программу активностей: кулинарные мастер-классы, развлекательное шоу и анимационную программу.
ВИДЕО ГОТОВОГО ПРОЕКТА
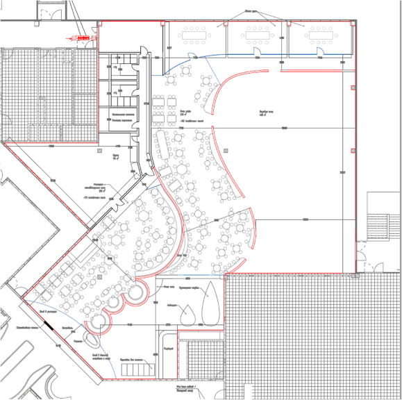
ВВОДНАЯ ИНФОРМАЦИЯ ПО ПРОЕКТУ
Под игровую зону выделено 700 кв.м, на площадке расположены колонны. Высота потолка ровно 4 метра, при этом при проектировании очень важно учитывать все пожарные и санитарные нормы, так как игровая зона располагается при ресторане. Дополнительно необходимо учесть расположение электрической проводки для подключения световых конструкций.
ПРОЕКТИРУЕМ. ПРОИЗВОДИМ.УСТАНАВЛИВАЕМ.
Полный цикл - от проектирования продукции, до монтажа готовых аттракционов
ПРОЕКТИРОВАНИЕ
Площадь: 700 кв.м

Оборудование:
  • Большой лабиринт с тюбинговой горкой и сухим бассейном
  • Игровой лабиринт шестигранник
  • Батутная арена шестигранник
  • Сухой аквапарк
  • Радужные сети
  • Игровая площадка для малышей
  • Автомобильная дорога
  • Световые декорации


РАССЧИТАТЬ СТОИМОСТЬ И ЗАКАЗАТЬ ПРОЕКТ
ЭТАПЫ ПРОИЗВОДСТВА
МОНТАЖ ИГРОВОГО ОБОРУДОВАНИЯ
ГОТОВЫЙ ПАРК
ПРЕИМУЩЕСТВА ПРИ РАБОТЕ НАПРЯМУЮ С ПРОИЗВОДИТЕЛЕМ
  • Проектирование объектов любой сложности
  • Экспертное сопровождение проекта
  • Собственное, полностью отечественное производство
  • 100% соблюдение сроков изготовления
  • Рассрочка 0%
  • Доставка по всему миру
  • Монтаж любой сложности
  • Гарантия и обслуживание
ДРУГИЕ РЕАЛИЗОВАННЫЕ ПРОЕКТЫ
ЗАКАЖИТЕ ИГРОВОЕ ОБОРУДОВАНИЕ
ДЛЯ ВАШЕГО БИЗНЕСА ПРЯМО СЕЙЧАС!
Оставьте заявку, и мы начнем работу над вашим проектом уже сегодня
Оставьте e-mail и мы пришлем Вам скидку 5%
Нажимая на кнопку, вы даете согласие на обработку персональных данных и соглашаетесь c политикой конфиденциальности