СЕМЕЙНЫЙ ЦЕНТР
ПОД КЛЮЧ
Будущие владельцы семейного центра "ПРЯТКИ ПАРК" провели маркетинговое исследование населения города Томска, которое показало, что весьма рентабельно будет открыть семейный парк в каждом районе.
Главной идеей проектируемого парка стало сближение родителей и их детей. Перед нами стояла задача создать единое игровое пространство, где дети и их родители смогут активно провести время вместе. Для этого мы подобрали разноплановое оборудование: от мягких модулей
для самых маленьких посетителей и вертикального лабиринта и батутной арены для подростков.
Совместно с заказчиком была выбрана оригинальная
и свежая тематика парка -стройка, которая очень
органично объединила различные виды
игрового оборудования в единое целое.
ВИДЕО ГОТОВОГО ПРОЕКТА
ВВОДНАЯ ИНФОРМАЦИЯ ПО ПРОЕКТУ
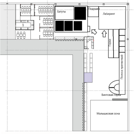
Помещение Г-образной формы в одном из торговых центров города Томск. Площадь под игровое пространство 410 кв.м. При расстановке оборудования необходимо учесть наличие ферм и верхнего освещения, а также спланировать потоки посетителей.
ПРОЕКТИРУЕМ. ПРОИЗВОДИМ.УСТАНАВЛИВАЕМ.
Полный цикл - от проектирования продукции, до монтажа готовых аттракционов
ПРОЕКТИРОВАНИЕ
Площадь: 410 кв.м

Оборудование:
  • лабиринт с пластиковыми горками и сухим бассейном
  • вертикальный лабиринт
  • подушка для прыжков
  • батутная арена с поролоновой ямой
  • лабиринт соты
  • малышковая зона


РАССЧИТАТЬ СТОИМОСТЬ И ЗАКАЗАТЬ ПРОЕКТ
ЭТАПЫ ПРОИЗВОДСТВА
МОНТАЖ ИГРОВОГО ОБОРУДОВАНИЯ
ГОТОВЫЙ ПАРК
ПРЕИМУЩЕСТВА ПРИ РАБОТЕ НАПРЯМУЮ С ПРОИЗВОДИТЕЛЕМ
  • Проектирование объектов любой сложности
  • Экспертное сопровождение проекта
  • Собственное, полностью отечественное производство
  • 100% соблюдение сроков изготовления
  • Рассрочка 0%
  • Доставка по всему миру
  • Монтаж любой сложности
  • Гарантия и обслуживание
ДРУГИЕ РЕАЛИЗОВАННЫЕ ПРОЕКТЫ
ЗАКАЖИТЕ ИГРОВОЕ ОБОРУДОВАНИЕ
ДЛЯ ВАШЕГО БИЗНЕСА ПРЯМО СЕЙЧАС!
Оставьте заявку, и мы начнем работу над вашим проектом уже сегодня
Оставьте e-mail и мы пришлем Вам скидку 5%
Нажимая на кнопку, вы даете согласие на обработку персональных данных и соглашаетесь c политикой конфиденциальности